ID CP3061017

AP. 3CAM SPATIOS+CURTE IN BLOC P+3 / METROU N. TECLU-PALLADY!

ID CP3061017

165,000 € + 21% TVA

Apartament cu 3 camere de vânzare
Theodor Pallady, Bucuresti
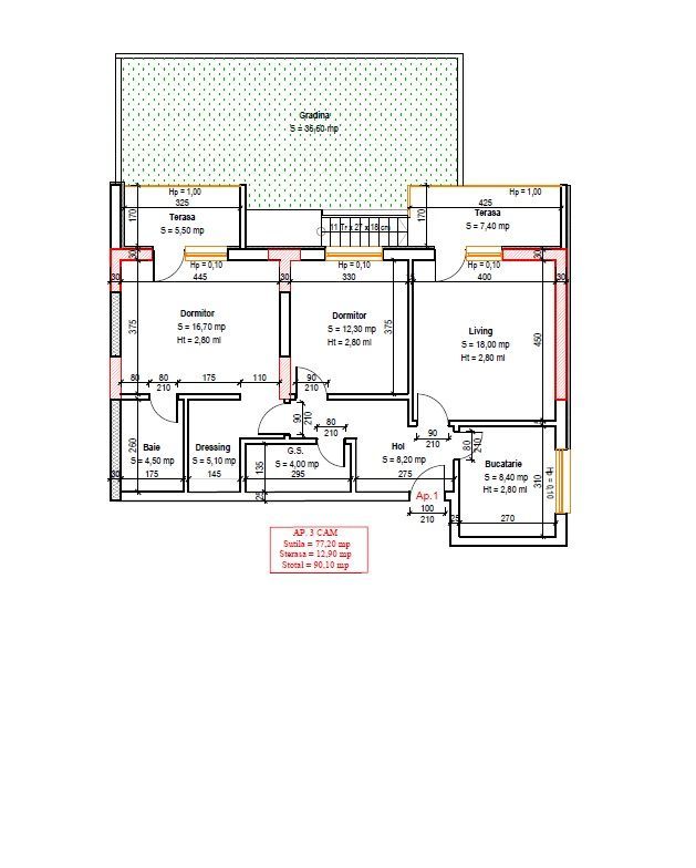
77.2 mp
2026

Complex rezidențial premium — 3 blocuri, P+3

Avans 80% - 165.000 euro plus tva

Avans 50% - 175.000 euro plus tva

Avans 15% - 185.000 euro plus tva

Vă propunem un ansamblu intim și elegant, format din 3 blocuri cu doar 3 etaje, amplasat la 6-8 minute de mers pe jos de stația de metrou Nicolae Teclu. Proiectul oferă locuințe pentru toate nevoile: garsoniere și apartamente cu 2, 3 și 4 camere, proiectate pentru confort și funcționalitate.

Dotări și finisaje:

Lifturi Schindler în fiecare bloc

Locuri de parcare subterane și supraterane, precum și boxe de depozitare

Fiecare apartament beneficiază de centrală proprie, tâmplărie termoizolantă tripan și încălzire în pardoseală

Băi echipate cu toalete încastrate pentru un design curat și modern

Posibilitate de personalizare: selecție variată de finisaje (gresie, faianță, parchet, uși)

Avantaje:

Proiect premium, cu atenție la detalii și calitate a materialelor

Zonă bine conectată, cu acces rapid la transport, servicii și centre comerciale

Locuințe predare „la cheie”, configurabile după preferințele fiecărui cumpărător

Pentru planuri, disponibilitate și ofertă comercială, vă stăm la dispoziție.

Citește mai mult

  • Tip apartament
    Apartament
  • Compartimentare
    Decomandat
  • Număr camere
    3
  • Dormitoare
    2
  • Număr bucătării
    1
  • Număr băi
    2
  • Etaj
    Parter
  • Suprafață utilă
    77.2 mp
  • Suprafață totală
    90.1 mp
  • Suprafață curte
    36.6 mp
  • Disponibilitate
    Imediat
  • Confort
    1
  • Stare interior
    Ultrafinisat
  • Anul finisării
    2026
  • Număr balcoane
    2
  • Imobil
    Bloc de apart.
  • Stadiu construcție
    În construcție
  • An construcție
    2026
  • Construcție nouă
    Da
  • De la dezvoltator
    Da
  • Număr etaje clădire
    3

Facilități

Apă
Apometre
Canalizare
CATV
Centrală proprie
Contor electric
Contor gaz
Curent
Faianță
Ferestre PVC
Gaz
Gresie
Iluminat stradal
Încălzire prin pardoseală
Internet
Izolație exterioară
Lift
Mijloace de transport în comun
Nemobilat
Parchet
Parchet laminat
Străzi asfaltate
Telefon
Ușă intrare metal
Uși interior MDF
Vopsea lavabilă
Bogdan Ilie - Top Rezidential
Bogdan Ilie
Agent

0752897922


Solicită chiar acum o vizionare
Telefon
Sună acum Solicită vizionare
Necesare:

Site-ul nu poate funcționa corect fără aceste cookie-uri. Vezi cookie-urile

Statistică:

Strângem statistici anonime despre voi, vizitatorii unici, pentru a vă îmbunătăți experiența dumneavoastră. Vezi cookie-urile

Marketing:

Pentru a ne promova mai eficient serviciile noastre, folosim cookies pentru a vă identifica și a vă oferi proprietăți și servicii personalizate. Vezi cookie-urile

Acest site folosește cookies, află detalii. Alege ce tipuri de cookies dorești să permitem: